В очередном выпуске рубрики «Квартиросъемка» – реализованный проект дизайн-студии ILEDA. Двухэтажная квартира, один из уровней которой отведен под так называемый «мужской уголок» – пространство с домашним кинотеатром, где хозяин может проводить время с друзьями.

Планировка
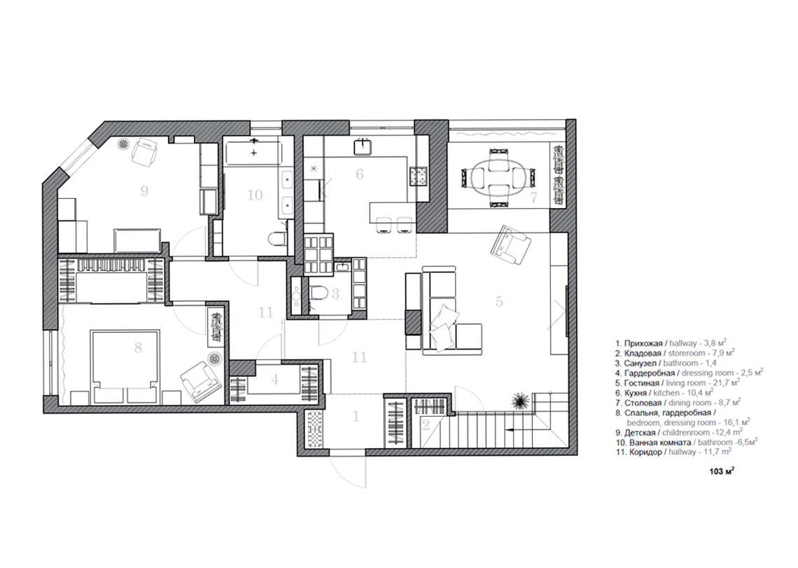
Планировка в новостройке изначально не была свободной, но авторы проекта Елена Шкель и Анна Цыбульская решили снести все стены, кроме несущих, а необходимые перегородки возвести в нужных местах. В процессе ремонта даже демонтировали и заново отстроили несущую лестницу.
В результате планировка получилась вот такой:

Первый уровень.

Второй уровень.
Первый этаж
Проект создавали для молодой семьи с ребенком, поэтому помимо гостиной, кухни, столовой и спальни для родителей на первом этаже есть и детская. По словам дизайнеров, каких-то специфических пожеланий у хозяев не было: главное – чтобы было современно и светло.


Гостиная.



– Так как лестницы в квартирах встречаются не так часто, мы решили акцентировать на ней внимание и как-то обыграть. Поэтому вокруг «построили» много интерьерных решений, – добавляют авторы проекта. – Например, дополнили лестницу атмосферной подсветкой, а металлические конструкции выполняют роль не только ограждений, но и интересных дизайнерских элементов.
Под лестницей, кстати, организовано дополнительное место для хранения – что-то вроде кладовки.




Стоит добавить, что перед дизайнерами не стояла задача использовать в проекте только натуральные материалы, поэтому в реализации использовали и имитирующие.
– Выбор исходил из атмосферы и стилистики. Подбирали то, что нравится, и то, что вписывалось в бюджет.

Столовая.

– В гостиной за диваном у нас оставалась центральная несущая колонна – и это было минусом. А чтобы превратить этот «недостаток» в плюс, мы обыграли его, спроектировав металлическую конструкцию, на полках которой теперь хранятся различные атмосферные предметы. Теперь это важный интерьерообразующий элемент.
С виду этот стеллаж кажется достаточно простым, но, как оказалось, сложным в исполнении, поэтому в какой-то момент даже был под угрозой срыва. Металлические конструкции пришлось варить отдельно на заказ, а собирать в одно целое – уже на месте. В ниши еще вставили мебельные элементы. В общем, у исполнителей было много вопросов по этой конструкции, но в итоге справились.

Кухня.


По словам авторов проекта, квартира хорошо оснащена технически – особое внимание уделили выбору техники и удобству ее использования. Также установили систему «Умный дом».

Спальня.


Второй этаж
Основной запрос хозяев – второй уровень обустроить под «мужское место обитания». То есть это должно быть место с домашним кинотеатром, где можно встречаться и проводить время с друзьями.
Под это и спроектировали верхний уровень. Единственное, чем дополнили из «хозяйственных нужд», – это постирочная.

Домашний кинотеатр.


Санузлы.



Перепечатка материалов CityDog.by возможна только с письменного разрешения редакции. Подробности здесь.
Фото: Сергей Пилипович.













