В феврале мы уже показывали, как супруги Дарья и Дмитрий круто переделали старую минскую хрущевку. Оказалось, что пара купила квартиру еще и в новостройке – и снова сделала классный интерьер. Сами посмотрите.

Что за квартира?
Супруги Дарья Смирнова, Дмитрий Новоселов и их сын Ян по-прежнему живут в Венесуэле. А эту квартиру, как и предыдущую, пара купила и отремонтировала под сдачу.
– Когда продумывали дизайн, представляли, что в квартире когда-нибудь будет жить наш сын, поэтому жилье идеально подойдет для молодого энергичного человека или пары, – отмечает Дарья.
В качестве преобладающих стилей супруги называют минимализм и urban jungle. Монохромный фон здесь разбавлен яркими акцентами в виде кухонных фасадов, картин и живых растений. «А главное, при желании интерьер можно изменить до неузнаваемости – и это без капитальных вложений».
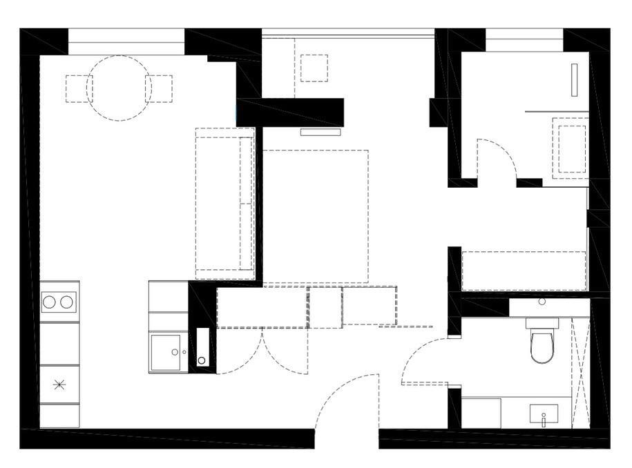
Планировка: вместо кладовки сделали санузел, а на его месте – гардеробную и ванную
– Квартира расположена на 14-м этаже новостройки. Из всех комнат – в том числе из ванной – открывается красивый вид на город. Это и стало решающим фактором при покупке, – говорят супруги. – Несмотря на скромную площадь, за счет вида пространство не ощущается тесным.

Планировка до…

…и после.
Квартира продавалась со свободной планировкой, поэтому стены в ней почти не трогали. Супруги разделили пространство на две комнаты (спальня с гардеробной и гостиная с кухней) и сделали проход на кухню из прихожей.
Вместо кладовки на входе оборудовали санузел с небольшим хозяйственным шкафом и постирочной. А на месте бывшего санузла расположилась гардеробная и небольшая ванная комната, доступ к которым открывается только из спальни.
Прихожая: шкаф служит перегородкой между прихожей и спальней
Входная зона выполнена в стиле минимализма: светлые оттенки, скрытая дверь в санузел, выполненная в одной плоскости со стеной, зрительное отсутствие каких-либо выступающих элементов – в том числе ручек на дверцах шкафа.
Кстати, большой шкаф в прихожей выполняет двойную функцию – служит не только местом для хранения вещей, но и перегородкой между прихожей и спальней. Такое решение супруги выбрали для экономии пространства.
«Украшает прихожую копия любимой картины Марии Янковской».
Санузел при входе.
Кухня и гостиная: от верхних шкафчиков отказались, приватности добавили при помощи шторы
Кухня в квартире получилась проходной, но, по словам хозяев, от этого не менее удобной и вместительной. Там есть много мест для хранения и вся необходимая техника – включая посудомоечную машину. Рабочая поверхность тоже достаточно просторная.
Рядом с холодильником супруги установили высокий шкаф для хранения запасов и всего необходимого, поэтому от верхних шкафчиков на кухне решили отказаться. Вместо них повесили открытую полку для красивых подручных предметов и декора.
Почти всю мебель для квартиры изготавливали на заказ. А диван, обеденную группу, сантехнику, освещение и другие мелочи выбирали и покупали онлайн.
– Основным критерием при выборе мебели было оптимальное соотношение цены и качества. Много вкладывать не хотелось, но и на важных составляющих не экономили. В итоге стоимость ремонта под ключ вышла в районе 25 000$. И с учетом ряда дорогостоящих решений считаем это хорошим результатом.
А еще мечтой хозяев всегда было иметь кинокомнату вместо обычного телевизора. Это желание они решили исполнить именно в этом интерьере – и в гостиной установили проектор. «А для создания большего уюта и приватности гостиную и обеденную зону можно отгородить от кухонной с помощью шторы».

На стене возле столика – «пикантная графика» Надежды Хмыль.
Спальня: балкон утеплили и оборудовали под кабинет
Как мы уже писали, на месте бывшего санузла, который предполагался по проекту изначально, супруги оборудовали отдельную гардеробную и небольшую ванную комнату. Доступ к ним есть только из спальни.
«Таким образом формируется очень комфортная приватная зона, из которой не хочется выходить. Именно это и символизирует картина на стене возле кровати».


Картина по мотивам иллюстрации Жизель Декель.
Балкон утеплили и оборудовали под кабинет: «Это дает возможность спокойно работать или учиться, даже если кто-то готовит или смотрит кино в гостиной».

В такой небольшой квартире окно в ванной – большая редкость. Благодаря ему в помещении всегда много света и воздуха. А чтобы максимально использовать дневное освещение, между ванной и гардеробной установили стеклянную перегородку.
– Дизайн мы делали сами, а ремонтом руководили дистанционно. А так как параллельно занимались еще и другими проектами, то реализация затянулась на год. Но результатом мы довольны, – добавляют супруги.

Тот самый вид из окна.
Перепечатка материалов CityDog.io возможна только с письменного разрешения редакции. Подробности здесь.
Фото: Андрей Кот.












