Проект, представленный сегодня в рубрике, был реализован в 2020 году дизайн-студией VAE design & architecture. Каких-то особых требований и пожеланий у заказчика не было, поэтому эту квартиру для сдачи в аренду на долгий срок дизайнеры делали на свой вкус.
Фото этой квартиры были представлены дизайн-студией. Нет, на них не хозяйка.

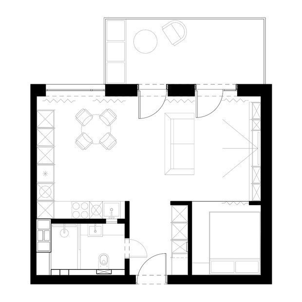
Планировка
По словам архитектора-дизайнера Евгения Варковича, в этой квартире в новостройке изначально было пару перегородок, но в процессе ремонта их снесли. В новой версии проекта в пространстве удалось обустроить объединенную кухню с гостиной, отдельное спальное место за ширмой и совмещенный санузел с душевой кабиной.
– Мы не знаем, кто будет жить в этой квартире, но в ней точно будут комфортно себя чувствовать молодая пара или «одиночки» любого пола, – добавляет Евгений. – Семье с ребенком будет уже тесновато.

Прихожая
В прихожей использовали модную сейчас итальянскую плитку терраццо, а шкафы для хранения верхней одежды немного приподняли над полом.
– Прихожая небольшая, поэтому такой прием очень удобен: под шкафчики можно спрятать банкетку и обувь, чтобы они не мешали. Там же сделали розетку для робота-пылесоса.



Основное пространство
– Мы взяли оттенки зеленого, кораллового, совместили их с белым и разбавили мелким декором.


Картина – Lana Leto.
Всю корпусную мебель (в том числе кухню и кровать) для проекта делали на заказ у белорусских мастеров. Отдельно стоящих предметов мало, и все они разного производства. Раскладной диван в зоне отдыха, например, – белорусский, журнальный столик – итальянский, стол и стулья на кухне – IKEA.



На кухне есть вся необходимая для жизни техника: посудомоечная и стиральная машины, встроенный холодильник, варочная поверхность, микроволновка. Короб для вытяжки также изготавливали на заказ: делали каркас, а потом заливали его гипсом.

– Немало сил ушло на то, чтобы разработать конструкцию окошка над умывальником, ведущего в санузел, – добавляет Евгений. – С одной стороны, оно выполняет декоративную функцию, с другой – еще и практическую: днем дает дополнительный свет.
В итоге получился двойной стеклопакет с матовым стеклом, который обеспечивает дополнительную шумоизоляцию (если кто-то пошел в туалет, на кухне ничего не слышно).




На полу – влагостойкий ламинат, который не боится попадания воды.


Пол, стены и потолок в зоне кровати выкрашены «антивандальной» краской, с которой легко можно отмыть любую грязь.
– Само пространство не очень большое, поэтому краску выбирали из расчета, что стены легко можно задеть – плечом, ногой и т.д. Во избежание появления ненужных пятен использовали моющиеся материалы.


Санузел
В совмещенном санузле – душевая кабина польского производителя. Внутри – дополнительные встроенные полочки, на которых можно удобно хранить любые косметические средства.



Перепечатка материалов CityDog.by возможна только с письменного разрешения редакции. Подробности здесь.
Фото: Егор Пясковский.














Очень не уютно.
дизайн решает проблемы заказчика а не дизайнера
Силикон (=
А я думал что бабушавщина)))