По словам хозяина, Андрея, история квартиры (как и всего дома, впрочем) достаточно мутная. Например, в официальных документах указано, что здание построили после войны. Хотя в процессе изучения архивов выяснили, что на самом деле оно появилось еще до революции.

Предыстория
Этот дом, расположенный в Раковском предместье, носит статус историко-культурной ценности. Согласно официальным источникам, здание построили после войны. Однако во время капитального ремонта пару лет назад на одном из фасадов посыпалась старая штукатурка, за которой открылась оригинальная кирпичная кладка. Покопавшись в архивах, Андрей нашел старые документы и выяснил, что дом был построен еще в 1899 году по прошению его первого собственника Штубрина.
– Изначально в нижней части здания располагалась табачная фабрика, а сверху жили ее работники в коммунальных квартирах, – рассказывает Андрей. – Во время войны дом достаточно пострадал: мне удалось найти фотографию, на которой он стоит без крыши.
Что касается самой квартиры, то из-за небольшого размера вряд ли она была коммунальной – но точно выяснить это не удалось. Знаю только, что до того, как я ее купил, лет 12 она сдавалась в аренду. Не сказать, что здесь был совсем убитый «бабушатник», но ремонта требовало все.

Так квартира выглядела во время продажи.



Ремонт и перепланировка
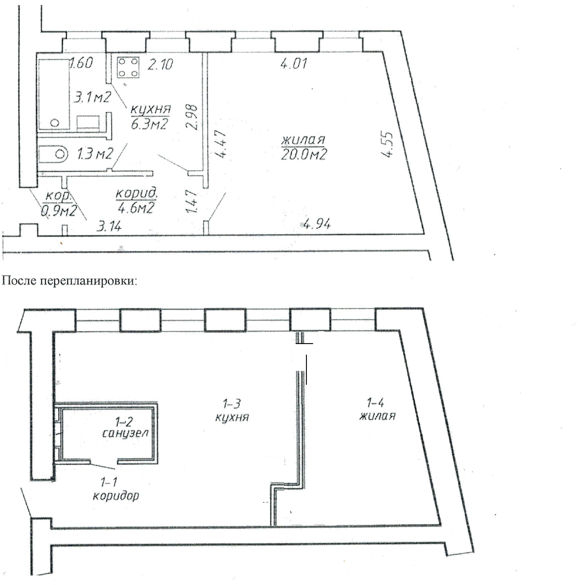
Изначально в квартире была одна комната, обособленная кухня и раздельный санузел. В процессе ремонта Андрей решил снести все старые перегородки и сделать полную перепланировку помещения. В результате в квартире есть небольшой совмещенный санузел, отдельная спальня и гостиная, объединенная с кухней.
С новой планировкой удалось увеличить жилую площадь – 37 квадратных метров против прежних 36.

Планировка квартиры «до» и «после».
По словам Андрея, менять в квартире пришлось все: электропроводку, сантехнику, окна, стены, пол. Что говорить, если во всем доме до сих пор нет горячей воды.
– Раньше здесь стояла газовая колонка, которую я заменил на бойлер, а вместо газовой плиты поставили электрическую, – добавляет Андрей. – Зато благодаря таким изменениям кухню удалось объединить с гостиной.


Так выглядела квартира в процессе ремонта.




Гостиная, объединенная с кухней
– У меня несколько квартир для сдачи, и все они выполнены в похожем стиле. Но в каждой есть и что-то свое. Здесь, например, оригинальная кирпичная стена, – рассказывает Андрей. – Изначально все стены в квартире были заштукатурены. Но штукатурка была такая старая, что в некоторых местах рассыпалась буквально в песок. Поэтому проще было ее снять и положить новую.
В процессе сбивки штукатурки на стенах нашли кирпич – и в некоторых частях квартиры решили его оставить, обработав специальной пропиткой матового цвета.




– О том, что дом старый, свидетельствуют еще и окна, – добавляет хозяин. – На нижних этажах верхняя часть проемов имеет арочную форму. А здесь, на верхнем этаже, они заканчиваются балками, которые я тоже оставил для истории. Думаю, что после того, как во время войны дом остался без крыши, его реставрировали таким способом.


– Так как квартира изначально планировалась под сдачу, ремонт хотелось сделать с небольшими вложениями. Поэтому мебель выбиралась достаточно бюджетная, – делится Андрей. – Кухню, например, я вообще сам собирал. Начертил себе эскиз, пошел на распил, заказал необходимые детали и сам собрал. Столешница тоже получилась недорогой, но благодаря своей расцветке «под дерево» смотрится довольно хорошо.
Обеденный стол также собран самостоятельно: ножки IKEA, столешница из обычного мебельного щита и сверху – матовое стекло. Стулья – белорусского производителя. Бытовая техника (небольшой холодильник и микроволновая печь) – тоже.



Некоторые стены в квартире заново оштукатурены и покрашены или оклеены светлыми обоями (по словам Андрея, на съемном жилье обои себя показывают лучше). Пол пришлось сначала выравнивать при помощи фанеры, сверху – ламинат. Потолки сделали натяжными, но за счет широкого потолочного плинтуса они выглядят просто покрашенными.
Из мебели в гостиной только диван и угловой сервант белорусских производителей. Шторы, карнизы и посуда для кухни – IKEA.
– Над диваном я повесил деревянную карту, которую заказывал у наших белорусских мастеров. Идея была в том, что гости квартиры будут отмечать, из какой страны они приехали. Но из-за пандемии ситуация изменилась, и карта пока пустая.



– В углу возле дивана можно заметить выступ на стене, – добавляет Андрей. – Убрать его не было возможности, поэтому с другой стороны стены, в спальне, внутри выступа оборудован шкаф. Кроме того, у меня есть идея когда-нибудь в будущем сделать здесь выход на чердак. И, по моим расчетам, шкаф будет опорой будущего лестничного пролета – я сразу делал так, чтобы потом не пришлось ничего переделывать.



Коридор и санузел
В коридоре также оставили полоску оригинальной кирпичной стены. И интересна она своей неоднородностью: кирпичи есть и красные, и печные желтые, и силикатные белые – видимо, после войны восстанавливали из того, что было.


– Единственное, что получилось дорогим в этой квартире, – это двери: в санузел и раздвижная в спальне. Их я заказывал в один цвет с плинтусом, – добавляет Андрей. – Входную тоже менял, но с ней не заморачивался: просто спросил соседей, где они покупали свои, и заказал такую же, чтобы не сильно выделяться.



– Санузел раньше был раздельный, а ванная была со своим окошком, что классно. Но в такой небольшой квартире тот вариант занимал слишком много места, поэтому в результате перепланировки вместо двух появилась одна комната с душевой кабиной.
Спальня
Как рассказал Андрей, во время сбивания штукатурки строители немного повредили кирпич, поэтому одну часть стены пришлось покрасить в белый. Зато остались оригинальные «окошки», в которых сейчас стоят милые статуэтки.


– Из-за того, что комната имеет трапециевидную форму, возле кровати пришлось соорудить такую конструкцию, чтобы появился хоть один прямой угол и можно было поставить кровать.
Кровать, кстати, из массива сосны – также белорусского производства. Как и комод, перевезенный вместе с сервантом в гостиной со старой квартиры.




– А еще в спальне висит картина с изображением китов. Идея в том, что, по одной из легенд, наш мир держится на китах и черепахах. Поэтому киты здесь – как символ основы мира и продолжение идеи с картой в гостиной.
Перепечатка материалов CityDog.by возможна только с письменного разрешения редакции. Подробности здесь.
Фото: realt.onliner.by, из личного архива героя.













Ну а ответ на вопрос, почему она то есть, то нет - фото сделаны в разное время. Если обратить внимание на предметы на тумбу и сервировку стола.