Сегодня показываем новенький проект от студии ZROBIM architects. Просторная квартира для молодой семьи с двумя детьми и большой собакой. Получилось даже немножко похоже на загородный дом в условиях квартиры в новостройке – сами посмотрите.
.jpg)
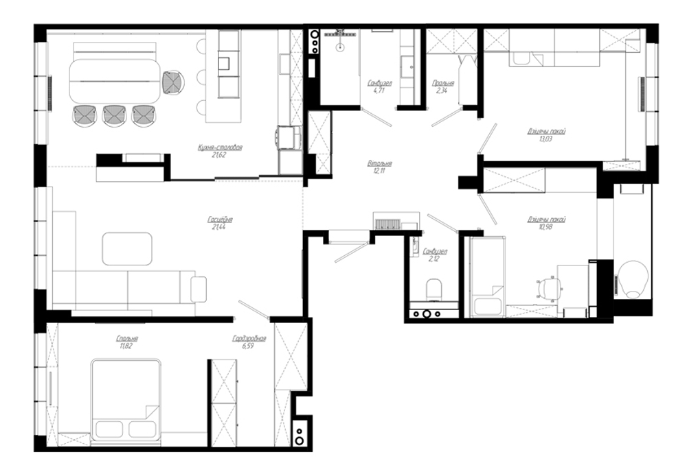
Планировка
Планировка в квартире изначально была свободной, поэтому архитекторы Валерия Губаревич, Марк Гурда и Алексей Кораблев отрисовывали и зонировали пространство практически с нуля.
– Хозяева – очень добрые и открытые люди, которые любят звать к себе гостей и устраивать тусовки, – рассказывает архитектор и один из руководителей студии Алексей Кораблев. – Поэтому важно было не только обеспечить каждого члена семьи отдельной комнатой, но и организовать в квартире просторное общее пространство, в котором будет удобно общаться как членам семьи, так и собравшимся друзьям.
В результате в проекте появилось объединенное пространство кухни, столовой и гостиной, спальня для родителей, две детские (для девочки и для мальчика), гардеробная, постирочная и раздельный санузел, который решили не объединять.

– Квартира для заказчиков была очень важной – это первое такое их жилье с большими вложениями. Поэтому и к его обустройству они подходили ответственно, – добавляет Алексей. – Для клиента было важно словить одну волну с дизайнерами, чтобы мы были не просто инструментом, воплощающим их задумки, а чем-то вроде команды, которая думает и видит одинаково.
Поэтому еще на этапе знакомства наш дизайнер рассказывал клиентам чуть ли не свою личную историю: что ему нравится, любит ли он путешествовать и есть ли у него своя собака. И собака, кстати, есть (улыбается).
Еще больше крутых ремонтов: много воздуха, света и даже «парящая» лестница – посмотрите, какой крутой дом мы нашли под Минском
Прихожая
Прихожая получилась достаточно большой и, можно сказать, ядрообразующей: именно через нее можно попасть в большинство комнат в квартире (только вход в спальню родителей – через гостиную).


Металлические полочки и выдвижную консоль для обуви делали на заказ у местных мастеров. Две «полоски» света (настенные бра) несут определенные функции. То, что закреплено на шкафу, обеспечивает свет тому, кто у зеркала. Второе на стене – «аварийное»: его родители оставляют включенным на ночь для детей.
Гостиная, объединенная с кухней и столовой
Под общее пространство гостиной, кухни и столовой архитекторы постарались выделить максимально возможное количество квадратных метров. В результате получился просторный open space, условно разделенный на разные зоны.
Например, перегородка с телевизором отделяет гостиную от столовой. При этом она расположена в центре комнаты и не примыкает ни к одной из боковых стен, что обеспечивает возможность свободного перемещения.

Справа от центрального пилона предусмотрена раздвижная перегородка. По словам дизайнеров, какой-то шумоизоляционной или другой важной функции она не несет. Зато с ее помощью можно спрятать, например, немытую посуду, если неожиданно приехали гости.




– Если посмотреть на планировку, можно понять, что мебель в квартире также расставлена неслучайно, – отмечает Алексей. – Например, диван в гостиной стоит напротив телевизора, но при этом между ним и кухней нет никаких преград.
Поэтому человек, что-то готовящий у плиты, может свободно общаться с теми, кто сидит на диване или за большим обеденным столом. То есть этот интерьер про людей, настроенных на общение, и про то, как пространство может им в этом помогать.



Практически вся мебель для проекта делалась на заказ по эскизам дизайнеров, в том числе и большой модульный диван для гостиной.
– Наш мебельщик специально продумывал механизм, чтобы диван можно было разложить и сделать дополнительное спальное место на случай, если кто-то из гостей останется ночевать, – добавляет дизайнерка Валерия Губаревич. – А один модуль дивана никак к нему не прикреплен, поэтому его можно переставлять куда угодно в качестве дополнительного места для сидения.


– В интерьере много дерева темных насыщенных оттенков, которое подчеркивает его экологичность, – продолжает Алексей. – Другие цвета использованы в приглушенных вариантах, это создает определенный комфорт.
Все дополняется композициями на стенах, которые создавала художница специально для этого проекта. Если посмотреть, в квартире нет ни одной белой скучной стенки – везде свои детали, которые можно долго рассматривать.




– Дерево мы использовали не только для декора, но и для защиты некоторых поверхностей, – добавляет Валерия. – Например, в зоне столовой нижняя часть стены, где могут бегать дети, зашита специальными панелями, защищающими стены от грязи и возможных царапин.
А на стене возле кухонного острова использована полоска керамогранита, «утопленная» в стену и размещенная там для того, чтобы защитить стену от брызг, разлетающихся от плиты.
«Антивандальными» можно назвать и напольные покрытия, выбранные с учетом того, что в доме живет собака. На кухне по этой причине появился наливной пол, а не привычная плитка, а в зоне гостиной – прочный паркет.




Спальня для родителей
По словам Алексея, все комнаты (за исключением большого пространства open space) получились небольшими. «По задумке, в них члены семьи только спят и отдыхают, а основная жизнь происходит в общем пространстве».
Но даже в этом варианте дизайнеры постарались продумать все до мелочей. Например, вход в спальню сделан через небольшую гардеробную, что обеспечивает комнате дополнительную шумоизоляцию.
Этот прием был подсмотрен в американских журналах и на деле оказался очень удобным: если в гостиной происходит какая-то тусовка, то человек в спальне практически ничего не будет слышать.




Детская для девочки
В детских комнатах, по словам дизайнеров, хорошо продумано зонирование. Например, спальные места находятся немного за углом, поэтому человек, который спит на кровати, не будет сразу виден тому, кто входит в комнату, – «психологически это считается правильным и более комфортным».




Еще одна фишка проекта в том, что во всей квартире не видно батарей. Причем все они зашиты не просто панелями, а полноценными консолями, в которых можно хранить необходимое. Сверху и снизу, к слову, есть специальные отверстия, позволяющие воздуху свободно циркулировать.
Консоль в комнате для девочки представляет собой подиум, на котором еще должны появиться подушки. На нем можно сидеть, играть или просто расположиться и смотреть в окно.
Санузлы
Санузел в квартире хоть и раздельный, но выполнен в одной стилистике и цветовой гамме. В ванной комнате, по словам Валерии, особое внимание уделили свету, чтобы при нанесении косметики было все красиво.

Туалет.



Ванная.
Детская для мальчика
В комнате для мальчика дизайнеры воплотили в жизнь мечту, наверное, каждого ребенка, разместив в игровой зоне скалодром, гимнастические кольца и укромное место на шкафу, в которое можно забраться по веревочной лестнице. «Взрослый там не поместится, а ребенок может залезть и даже поспать».




– По стилю интерьер получился больше скандинавским, но с поправкой на белорусские реалии, – заключают дизайнеры. – К тому же нельзя сказать, что проект выполнен в духе минимализма.
В квартире есть много разных деталей, которые создают целостную картину и отражают характер хозяев. А каждая комната несет свою особую атмосферу – так, чтобы каждый член семьи чувствовал себя максимально комфортно.
Перепечатка материалов CityDog.by возможна только с письменного разрешения редакции. Подробности здесь.
Фото: Сергей Пилипович.














Удивило только наличие всего одного умывальника для семьи из 4 человек, при том что площадь и квартиры, и санузла позволяет иметь два.