Сегодня в рубрике – свеженький интерьер от дизайн-студии M4studio. Проект был реализован в 2021 году, а заказчики успели заселиться в новую квартиру как раз перед Новым годом.
.jpeg)
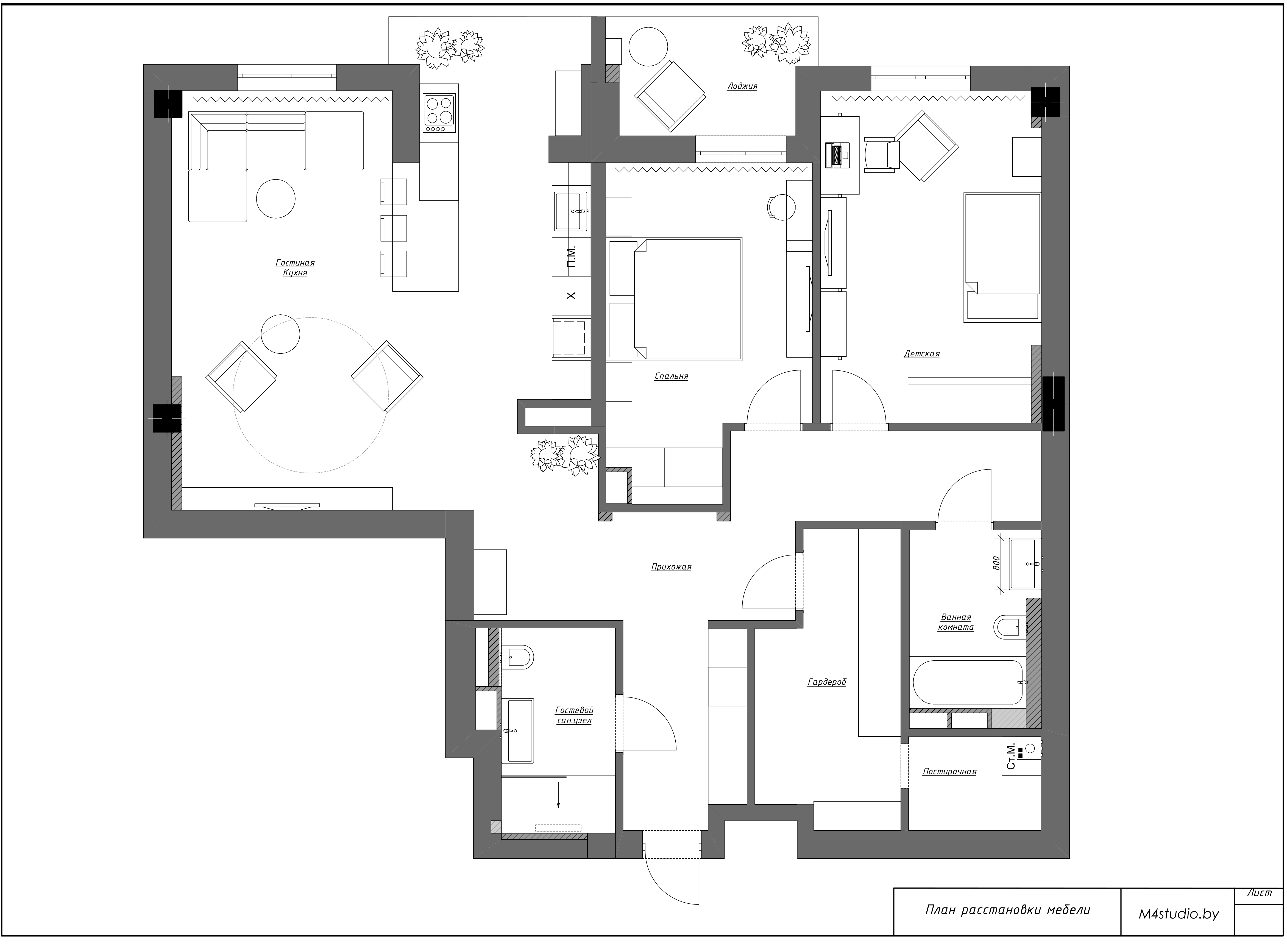
Планировка
Квартира достаточно большая по площади, поэтому в ней легко удалось реализовать все пожелания хозяев. Например, они хотели видеть не только основные необходимые комнаты, но и отдельные постирочную и гардеробную.
Архитектор Максим Пуховский, работавший над проектом, еще на этапе застройки разделил пространство на два блока. В первом разместились прихожая с гардеробной и гостевым санузлом и гостиная, объединенная с кухней. Во втором блоке – спальня для родителей, детская и хозяйский санузел.

Фото планировки.
Концепция
Над этим интерьером Максим работал в тандеме с дизайнеркой Дианой Лебедь, и вместе они дали проекту название «Природный ренессанс». А все потому, что использованные цвета и оттенки «взяты у природы».
По словам авторов, такая палитра хороша не только для городского интерьера, но подойдет и для пляжного домика или коттеджа где-нибудь на побережье. «Выбранные цвета будут создавать спокойную, расслабляющую атмосферу в любом месте».

А если говорить о концепции блоков, то оба созданы в разных стилистиках. В первом входная зона, кухня-гостиная и гостевой санузел выполнены в одном стиле, а жилые комнаты во втором блоке – в другом.
Прихожая
Входная зона с акцентным керамогранитом на стене задает общую идею природных мотивов в интерьере. И уже здесь серые и земляные оттенки разбавляет благородный шпон ореха, который делает пространство более теплым и уютным.


– Здесь хотелось подчеркнуть рисунок камня, поэтому в качестве декора мы использовали большое зеркало с закругленными краями и оригинальный светильник испанского бренда.
Кухня-гостиная
Основное место в квартире занимает кухня-гостиная. Условно эти две зоны разделены кухонным островом, однако визуально представляют собой одно большое пространство, объединенное общей идеей и концепцией.

В этом пространстве реализовано несколько дизайнерских идей. Например, остров, задуманный как основная обеденная зона, выполнен из бесшовного керамогранита с текстурой натурального мрамора. Его строгую форму поддерживают полубарные стулья, а «смягчают» обстановку поворотные кресла в гостиной, дополненные круглым ковром.

На акцентной стене в гостиной – итальянские обои, имитирующие небо за рифленым стеклом. А их серо-голубые оттенки поддерживает необычная люстра, размещенная над кухонным островом.

Дополняют интерьер детали. В гостиной, например, привлекает внимание фигурка попугая на жердочке. В сочетании с «небом за стеклом» такая статуэтка выглядит очень заманчиво. А издалека может даже показаться, что попугай живой.
Гостевой санузел
В гостевом санузле авторы проекта использовали серую сантехнику, что встречается нечасто, и бра из той же коллекции, что и светильник в прихожей. Таким образом, идея одного пространства продолжилась в другой комнате, и интерьер получился более целостным.

Хозяйский санузел
В санузле для хозяев кажется, что попал в какую-то тропическую страну – и сразу как будто пахнет отпуском. Мозаичная плитка на полу, пуфик в виде черепахи (да-да, на ней можно сидеть!), сочетание белого и глубокого синего оттенков в сумме дают отсылку к морским интерьерам.



Глядя на одну только черепаху, хочется идти собирать чемодан!
Спальня
Кстати, по словам авторов проекта, в создании концепции для второго блока (спальни, детской и санузла) активное участие принимала заказчица. И именно она выбрала стилистику спальни.
В этой комнате разместили большую двуспальную кровать с мягким изголовьем до потолка, прикроватные тумбочки, невысокий комод для хранения вещей, туалетный столик с зеркалом и вместительный шкаф.



Очень неожиданно «выбивается» из спокойной цветовой гаммы спальни шкаф. В закрытом виде он полностью соответствует палитре комнаты, а в открытом – преподносит сюрприз: все внутреннее наполнение в нем ярко-розового цвета.


А еще из спальни есть выход на балкон, который своим дизайном напоминает теплую террасу. В солнечную погоду, кажется, просто невозможно не выйти туда с чашечкой кофе хотя бы на пять минут.

Детская
Детская комната тоже получилась немаленькой. Тут есть и шкаф для одежды, и спальное место в виде раскладного дивана, и рабочее место, и стеллажи для книг и игрушек.


Интерьер детской получился, можно сказать, на вырост – комната выглядит довольно взрослой и готовой для проживания не только маленького мальчика, но и подростка, и повзрослевшего юноши. В будущем разве что можно будет поменять спальное место, а в остальном – интересное функциональное пространство.


Перепечатка материалов CityDog.by возможна только с письменного разрешения редакции. Подробности здесь.
Фото: Игорь Насветников.













Если у вас будет время, то загуглите его и все вопросы отпадут :)