Эту квартиру дизайнерка Юлия Мурыгина проектировала для себя и своей семьи. Ей самой, например, хотелось минимализма и ярких цветовых акцентов, а мужу – раздельные кухню и гостиную. Нам кажется, что Юлия отлично справилась с обустройством жилья для всех членов семьи – включая сына и собаку. А вам?
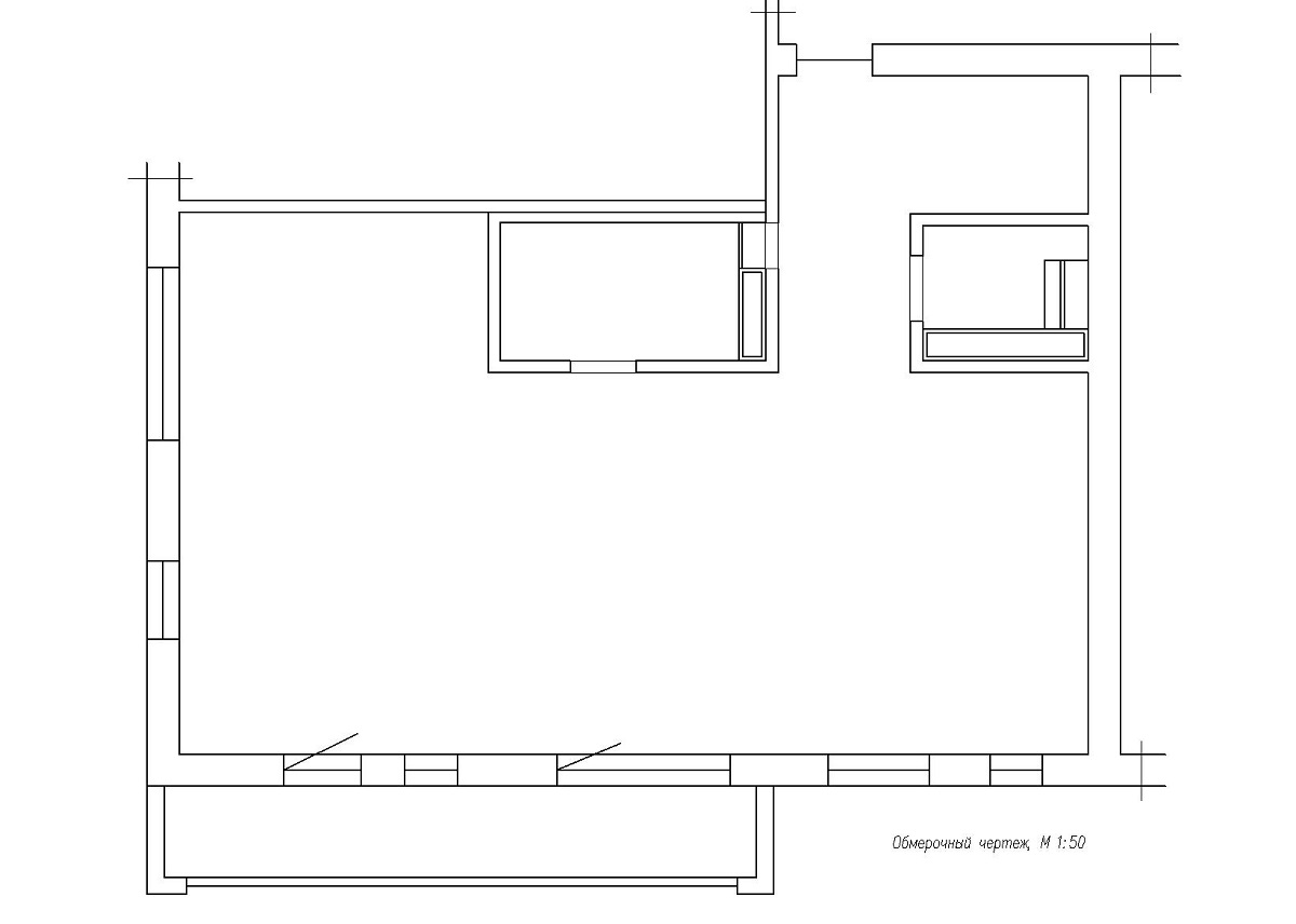
Планировка
– Основными критериями при выборе квартиры были свободная планировка, высокий этаж и достаточная площадь для размещения двух спален. Также муж хотел кухню и гостиную сделать раздельными – в прошлой квартире две эти зоны были объединены, а для нашего образа жизни это не самое подходящее решение, – рассказывает Юлия.
В результате выбор пал на квартиру, которая находится на 18-м этаже монолитного 23-этажного дома в новом квартале Новой Боровой. Общая площадь помещения – 84 «квадарата», 8 из которых занимает застекленная лоджия с двумя выходами: из спальни и гостиной.


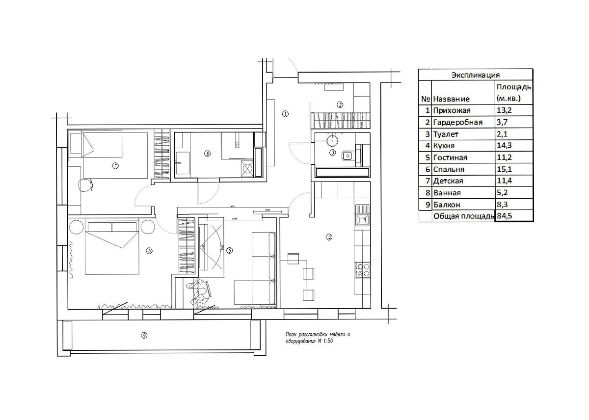
Планировка до и после.
После создания планировки в квартире появились раздельные кухня и гостиная, спальня, детская для мальчика 11 лет и отдельная гардеробная комната. Удобно для всех членов семьи – в том числе для собаки Зары.
По словам Юлии, перегородки между помещениями возводили из кирпича. В некоторых местах его оставили открытым и покрасили в белый.
Прихожая и гардеробная
– Двери мы делали под заказ у белорусского производителя – шпон подбирали под фактуру и цвет паркетной доски, – рассказывает Юлия. – Пластиковые подоконники заменили на новые из акрилового камня, стандартные радиаторы – на трубчатые.

Прихожая.



Гардеробная.
Гостиная
– Гостиная – мое любимое место в квартире, – говорит хозяйка. – Мне нравится, что и в комнате, и на лоджии большие окна в пол – благодаря этому открывается красивый вид из окна и чувствуется больше воздуха и пространства.



Лоджия.
– В работе над проектом было много сложностей, связанных с решением оставить бетонное перекрытие на потолке в первозданном виде, а также с дверями в моноблоке до потолка. Немало электромонтажных работ проводилось для установки системы «Умного дома».


– Свет на потолке распределяется по трековой магнитной системе, благодаря которой удалось избежать открытой проводки и штроб в перекрытии, – добавляет Юлия. – Декоративный свет дополняет эту минималистичную композицию своей лаконичностью и легким дизайном.

Спальня и детская
В каждой комнате есть свой цветовой акцент – при этом основой можно считать сочетание цвета натурального дуба и белых стен.



– Мне хотелось минимализма, но с акцентом на сочных цветах и картинах, которые покупались в процессе подготовки проекта именно под эту квартиру: например, большая круглая картина Вероники Рокашевич над изголовьем кровати или картина Павла Омелюсика в гостиной.

В прихожей и на кухне – работы Тани Паршуто. Еще одна круглая картина Вероники Рокашевич смотрит на гостиную. А в детской – работа Надежды Недашковской. Все работы – оригиналы, куплены напрямую у художников.


Санузел
Столешницы с раковиной в ванной и на кухне выполнены под заказ из акрилового камня. Белая плитка сделана под бетон, черная – под мрамор. Также на кухне есть необычная и очень актуальная сейчас плитка с фактурой тераццо.


Кухня
Шкафы и корпусную мебель для проекта делали на заказ по эскизам Юлии. Мягкая мебель и кровати – белорусского производителя. Стол и стулья на кухне – итальянского бренда.



Есть в проекте и привычные IKEA и JYSK: например, зеркало в санузле, панель на стене в детской, настольный светильник, крючки в прихожей.


Благодаря ярким цветовым акцентам интерьер выглядит очень интересно и уютно, но при этом глаза не устают, так как основа проекта – спокойные, приглушенные оттенки серого, белого, коричневого. Получилось довольно необычно и точно небанально.

Перепечатка материалов CityDog.by возможна только с письменного разрешения редакции. Подробности здесь.
Фото: Егор Пясковский.














