Сегодня в рубрике «Квартиросъемка» показываем новый красивый проект от студии ZROBIM architects, интерьер которого отражает пейзаж за окном – город и небо.

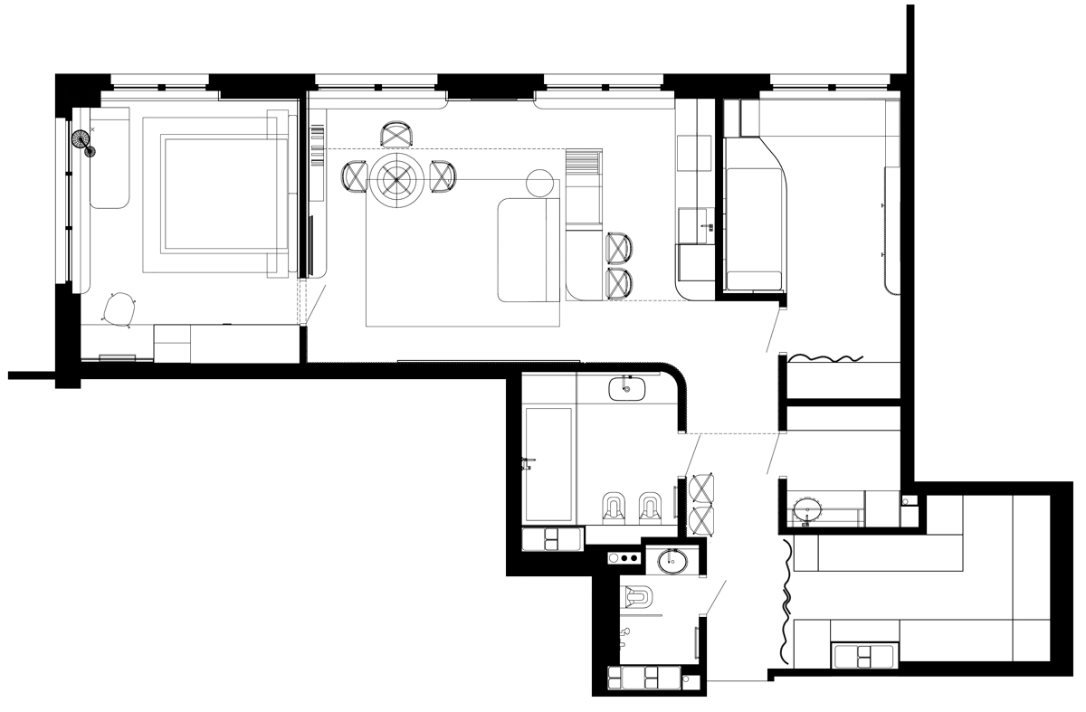
Планировка
При разработке планировочного решения архитекторы Алеся Трохимик и Роман Мохаммад хотели сохранить максимальный объем кухни-гостиной, но при этом выделить место для полноценной спальни и детской.
В общем, так и получилось, а еще нашлось место для полноценной гардеробной, постирочной и двух санузлов – основного и гостевого.

Концепция
– В современном интерьере обязательно должна быть какая-то общая концепция, – говорит один из основателей студии Андрусь Bezdar. – Поэтому когда мы заходим на объект, то придумываем для себя какие-то ключевые факторы, которые потом влияют на весь дизайн.
В этом проекте, например, мы отметили высокий этаж и большие панорамные окна, через которые видны город и небо, наполняющее определенным настроением. И эту легкость за окном хотелось подчеркнуть, перенеся в интерьер соответствующую цветовую гамму.



Прихожая.
Отсюда появились и три основных тезиса, определяющих интерьер: плавность форм, переход линейных предметов (материалов, света) с одной плоскости на другую и использование теплых и холодных цветовых оттенков, создающих целостную гармоничную картинку.

Концепция скругленности форм прослеживается в отсутствии углов сделанной на заказ мебели, специально подобранных ручках на шкафчиках.
Второй тезис отражен, например, в необычном линейном светильнике, который начинается на стене кухни-гостиной, продолжается на потолке в коридоре, доходит до спальни и отражается в зеркале, уходя в бесконечность.
Дополнительно есть у этого светильника и практическая функция: он является своеобразным переходным элементом между разными материалами на стенах, что избавляет от необходимости использовать для этого лишние приспособления.


– Эту графику света можно увидеть также и в картинных рамах, – добавляет Андрусь. – В некоторых из них есть и скругления, продолжающие тему плавности форм.
Третий тезис виден в использовании цветовой палитры. Основные цвета в интерьере продолжают пейзаж за окном – поэтому использованы холодные оттенки синего. А чтобы сделать интерьер более уютным и комфортным, их аккуратно разбавили теплыми оттенками оранжевого (например, цвет дерева).




Гостиная, объединенная с кухней
– Центральное место здесь занимает барная стойка, – рассказывает второй основатель студии Алексей Кораблев. – Она хороша тем, что расположена напротив телевизора, который можно смотреть во время готовки или еды, – это всегда удобно и практично. Или, если дома собирается тусовка друзей, можно заниматься разными делами, но находиться в одном пространстве и не терять контакт.


Окна в квартире изначально были стандартными пластиковыми, но их заламинировали и перекрасили в черный антрацитовый цвет. А плитка, использованная на балконе, плавно перетекает в покрытие на кухне, поддерживая один из тезисов интерьера.
– В квартире много картин, – добавляет Алексей. – Одна большая есть при входе в коридоре, еще одна – на стене в гостиной. Но особый интерес представляет круглая работа в квадратной раме, расположенная возле дивана ближе к кухне. Это не картина художника, а одна из фотографий хозяйки дома, оформленная таким необычным способом.

Еще один интересный элемент в гостиной – скругленная длинная полка под телевизором, переходящая в конвектор, встроенный в саму полку. Визуально (и в какой-то степени подсознательно) она напоминает камин, что добавляет интерьеру больше уюта.
Сами радиаторы расположены выше уровня пола в гостиной – как будто на ступеньке. Это вынужденная мера из-за разности уровней пола в комнате и на балконе.
Но есть в этом и плюс: по словам Андруся, конвектор лучше работает, если находится на возвышении (благодаря возможности использовать внутренний вентилятор). А еще наступать на конвектор очень неудобно, а когда он расположен выше, никто по нему не ходит. Зато на него можно присесть и погреться.
Ванная
– В такой небольшой квартире не ожидаешь увидеть такой огромный санузел, поэтому я считаю, что это отдельная фишка этого проекта, – отмечает Андрусь.
Интересно, что в ванной комнате повторяются все те же идеи, использованные в проекте. Линейный светильник на стене разделяет два разных материала. Ручки для шкафчиков такие же, как на кухне. А на стенах и экране ванны такой же микроцемент, как в спальне. По словам Андруся, он не боится влаги и создает цельную бесшовную поверхность.

Еще одна особенность комнаты – подсветка под ванной и тумбочкой. Благодаря ей создается ощущение, что ванна парит над полом и сохраняет ту самую легкость и воздушность интерьера.
– А еще делать шкафчики и ванну не до пола очень практично, – добавляет Андрусь. – Когда подходишь мыть руки, ноги немного заходят под шкафчик, и тебе гораздо удобнее стоять, ни во что не упираясь.




Мастер-спальня
В спальне была интересная история с кроватью. Когда заказчик озвучивал дизайнерам свои пожелания, сказал, что привык спать так, чтобы одна нога свисала. Поэтому ему удобно, когда бортик кровати мягкий и теплый, – таким его и сделали.



Многофункциональным получилось и рабочее место. С одной стороны, оно может быть туалетным столиком для макияжа. С другой – за ним можно поработать, закрыв зеркало специально предусмотренной шторкой. Там же организованы дополнительные розетки и подсветка.


В остальном – все те же идеи со скругленными формами, плавностью линий и перетеканием одной отделки в другую. Трековый светильник на потолке заменяет общий свет в спальне, а идея черных полосок перекликается в мебели и порталах двери.

Детская «на вырост»
– Когда мы начинали работать над проектом, заказчик еще не знал, кто будет – девочка или мальчик, – поэтому комнату сделали унисекс, – рассказывает Алексей. – Позже пол ребенка стал известен, поэтому мы немного доработали проект и добавили в него свои фишечки.
Например, при входе основной гардероб отделяется шторой. Такой же прием мы использовали и здесь. За занавеской – большой шкаф с удобными полками и зеркалом.


Скругленная консольная полка, плавно переходящая в рабочую поверхность у окна, – идея из гостиной. А сама рабочая поверхность получилась большой (3 метра в длину), но без опор – благодаря металлическому каркасу внутри.


Таким образом вся детская получилась как бы «на вырост» (по мере взросления ребенка интерьер не нужно будет полностью переделывать). А в перспективе она легко вместит и второго ребенка – и все благодаря двухъярусной кровати.


Перепечатка материалов CityDog.by возможна только с письменного разрешения редакции. Подробности здесь.
Фото: Сергей Пилипович.
.














