Сегодня в выпуске – свежереализованный проект дизайнерки Ольги Купчинской. Двухкомнатную квартиру в жилом комплексе D3 она обустраивала для бизнесмена из Испании, который решил приобрести себе недвижимость в Минске, чтобы было где останавливаться во время командировок по работе.

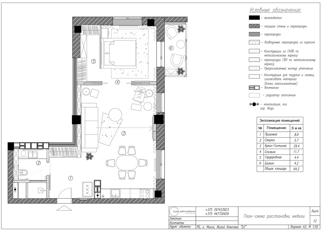
Планировка
К дизайнерке заказчик обратился еще на этапе поиска помещения. Он хотел купить небольшую квартиру площадью до 60 м2 на высоком этаже с видом на город. Выбор пал на жилой комплекс, расположенный рядом с водохранилищем «Дрозды».
По словам Ольги, пожеланий по планировке и интерьеру у заказчика было не так много. Он хотел объединить санузел, основное пространство оставить общим, а спальню сделать отдельной, но с широким дверным проемом, чтобы с кровати был виден телевизор в гостиной. В целом интерьер он хотел достаточно светлый, с использованием картин и других предметов искусства. Обязательным также было наличие системы «блэкаут» и приточно-вытяжной вентиляции.

Планировка
– Планировка в квартире была непростая, но свободная, – рассказывает Ольга. – Согласно пожеланиям заказчика, мы внесли в нее небольшие изменения, благодаря которым получилось скрыть все монолитные колонны, но при этом сохранить пространство и воздух в помещении, оставив его максимально просторным.
Высота потолков изначально была 2,7 м. После установки вентиляции и встроенных дисковых светильников они опустились до 2,58 м, однако визуально высоту удалось сохранить благодаря использованию дверей до потолка, выполненных белорусскими мастерами по эскизам дизайнера.

Входной коридор.
Санузел
В отличие от остальной квартиры, санузел выполнен в лаконичных черно-белых оттенках. По желанию заказчика вместо ванны была установлена просторная душевая кабина. В остальном – ничего лишнего: умывальник с цельной столешницей, шкафы и тумбочки для хранения вещей и бытовой химии.


Гостиная, объединенная с кухней
На полу – паркетная доска. Стены выкрашены приятным светлым оттенком, объема которому добавляет современная лепнина.
– Во всей квартире использованы одинаковые материалы: плитка, паркет, краска, материалы столешниц и фасадов мебели. Все это помогает сохранить единство стиля, добиться лаконичности и избежать визуальной захламленности.

– Цвет мягкой мебели был выбран с учетом вида из окна, где много зелени и природных оттенков, – говорит Ольга. – Благодаря этому интерьер выглядит очень свежим и живым в любую погоду.
Модные оттенки лилового отлично сочетаются с зеленью и придают интерьеру некий изыск и уют. Золотистый оттенок дверных рам благородно перекликается с глубоким зеленым бархатом. А главной фишкой интерьера можно назвать зеркала с эффектом старения, красоту которых подчеркивают шторы.
Дополнительно зеркала визуально расширяют пространство, усиливают вертикаль и выступают архитектурными массами интерьера, которые задают ему необходимый ритм.



Вся корпусная мебель в квартире была сделана белорусскими мастерами по эскизам дизайнера. Мягкая мебель и подставки для растений также изготавливались на заказ. Журнальный столик в гостиной – Zara Home.
– В интерьере использовано много живых цветов, которые переносят нас в некий оазис и создают атмосферу комфорта и отдыха, что как раз необходимо после деловых встреч.

– Проект разрабатывался «под ключ», поэтому для полной его завершенности я написала серию из пяти картин. По цветовой гамме они «поддерживают» другие оттенки, использованные в интерьере, а геометрия графики подчеркивает его выверенность и точность.

Обеденный стол – белорусского мебельного бренда.

Спальня
– Освещение в интерьере продумано с учетом того, что основная задача квартиры – обеспечить хозяину отдых после тяжелых будней и перелетов. Предусмотрено несколько возможных сценариев: функциональный верхний свет, торшеры, бра, а также мягкое освещение картин и подсветка шторных ниш.
Изюминкой я бы назвала люстру над обеденным столом, которая дает необычную россыпь лучей по потолку. Однако, безусловно, никакая люстра не сравнится с красивейшим видом на вечерний город.



Также из спальни есть выход на балкон, который после ремонта превратился практически в отдельную комнату – отличное место для релакса и отдыха с чашечкой кофе или бокалом вина.

Кстати, ни один предмет не был принесен в квартиру специально для съемки. Интерьер «живет» именно в таком виде, в каком представлен на фото.
Перепечатка материалов CityDog.by возможна только с письменного разрешения редакции. Подробности здесь.
Фото: Егор Пясковский.













Спасибо за статью.
Интересно, как организован полив цветочков, если квартира для командировок.
вот она как - "ничего страшного", или будут финансовые претензии??
а так-то ничего - жить можно и стильно..