Сегодня в рубрике – проект «Меланхолия», созданный архитектурным бюро Radical Passive. Здесь много белого, натурального, «свободного от дизайна». Смотрите сами.

Концепция
– Мы живем в среде, созданной постмодернизмом. Здесь все заполнено смыслами, знаками и значениями, поэтому зачастую бывает сложно распознать, что важно, а что второстепенно. А для того чтобы помочь хозяевам оставаться наедине со значимым, и был создан этот проект. Можно сказать, что пространство квартиры становится своеобразным побегом из белорусской реальности, – отмечают в бюро.

Проект назвали «Меланхолия» – и неслучайно. Само это понятие характеризуют уныние и грусть, которые часто появляются как следствие более вдумчивого взгляда на происходящее в мире. В малых дозах это защитная реакция психики, целебный сон, дающий возможность перерождения.
И если говорить об интерьере, то он весь создан для того, чтобы хозяева могли максимально в нем отдохнуть, расслабиться и перезагрузиться.
Спокойные тона, отсутствие кричащих деталей, натуральные материалы, минималистичный стиль – сплошная меланхолия в своем лучшем проявлении.
Планировка
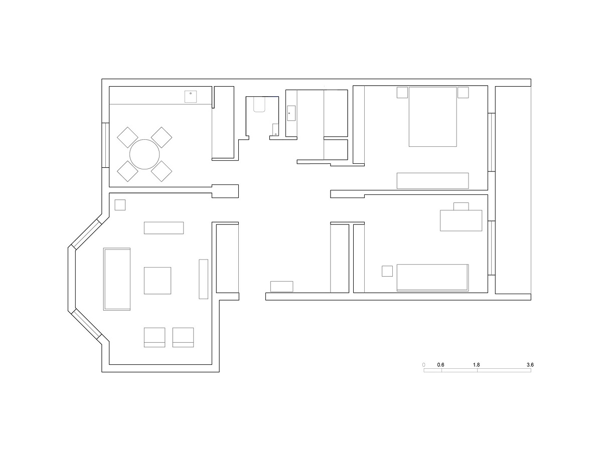
Квартира расположена в постмодернистском доме, успевшем устареть. Здание было построено несколько десятков лет назад – обычно такие создавали в 1990-х и 2000-х.
По словам архитекторов, характер планировочных решений в квартире изначально казался абсолютно случайным: низкие потолки, много хаотично расположенных дверей, несоразмерно большая входная группа.
– Нашей задачей было минимальными средствами преобразовать сложное хаотичное пространство в более логичное и понятное. Для этого, например, вместо дверных проемов разных размеров были использованы статичные порталы. Их глубина зависит от встроенных в стены систем хранения, а форма задает визуальные оси – из темной входной группы в светлые жилые комнаты.

В квартире 3 комнаты: гостиная, рабочий кабинет и спальня.
– Основной идеей проекта было создание пространства, максимально свободного от «дизайна», сложных форм и концепций. При этом мы как архитекторы понимаем, что большинству людей такой подход непонятен.
По сей день белые стены у многих ассоциируются с больничными – притом что в больницах, как правило, стены всегда цветные. Плюс в городе и без того много дизайнерских мест. Поэтому этот интерьер – это возможность отдохнуть от всего и всех.




Цвет и материалы
– Интерьер создавался для интеллигентной взрослой пары, которая уже вырастила детей. В приоритете у них были простые формы и натуральность. Цвет здесь играет второстепенную роль. Вместо него – материал, чистый и открытый.
На стенах – известковая штукатурка, на полу – дерево. В дополнение к этим материалам были подобраны полированная нержавейка, кварцевый и травертиновый камень с их «честными» текстурами, текстиль из натурального льна.
Светлые оттенки разбавили черными деталями: чугунными ручками, смесителями, металлическими карнизами.

Гостиная.



– Было интересно поработать с теми, кто понимает роль искусства в интерьере, – отмечают архитекторы. – Именно поэтому в кабинете появилась репродукция работы Валлотона со всей ее неоднозначностью и скрытым символизмом, а в гостиной – «Маска»: работа белорусского скульптора Александра Соколова.


Кабинет.


Спальня.
Мебель и аксессуары
Практически вся мебель для квартиры была спроектирована архитекторами бюро и выполнена на заказ, равно как и некоторые аксессуары. Например, черный подсвечник – дизайна Radical Passive.

Кухня.



Некоторые предметы мебели и аксессуары все же покупали готовыми, но их в интерьере очень немного: например, итальянские стулья на кухне или винтажный стул от Bloshka в кабинете.


В совмещенном санузле также не отошли от основной концепции и оформили его в белых тонах с небольшими черными акцентами: ручки, сантехника и смесители, сушилка для полотенец. В остальном – такие же лаконизм, чистота и меланхолия.


Перепечатка материалов CityDog.by возможна только с письменного разрешения редакции. Подробности здесь.
Фото: Palasatka.













Колодищах-уже нашли👌🏾
А интерьер вполне милый (ведь если я напишу, что он не милый, то тем самым добровольно примкну к неинтеллигентному меньшинству, лол).
Это не побег, это самоизоляция чтобы обезопасить окружающих