В новом выпуске рубрики «Квартиросъемка» – новенький проект от студии ZROBIM architects. Посмотрите, как классно дизайнеры переделали старую сталинку в красивое современное городское жилье.

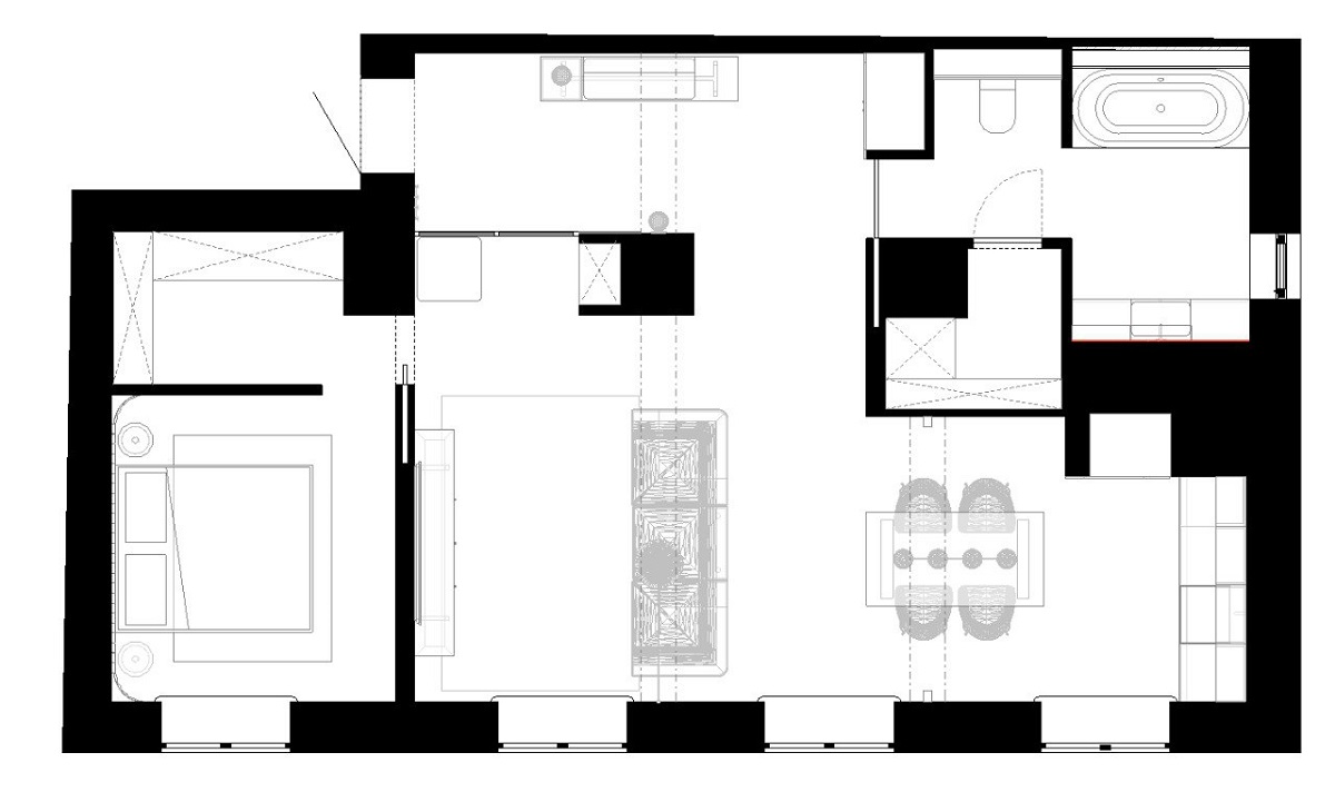
Планировка: стоило лишь убрать длинный коридор...
Изначально в квартире был длинный узкий коридор на входе, три отдельные жилые комнаты, обособленная кухня и раздельные санузлы – стандартная трехкомнатная сталинка без особого ремонта.

Планировка до…

…и после.
По словам Юлии Барылюк, архитекторки студии, которая работала над проектом, в процессе проектирования было разработано очень много разных вариантов перепланировки, но остановились в итоге на одном: с большой просторной прихожей, общим пространством кухни и гостиной, отдельной спальней с гардеробной и объединенным санузлом, который удалось увеличить за счет нежилых зон. Дополнительно еще и кладовку получилось вместить – для хранения разных бытовых предметов.
Вот как квартира выглядела «до»
Впервые придя на объект, дизайнеры увидели захламленную сталинку с пожелтевшими обоями, старой мебелью, покосившимися дверцами шкафчиков и большим количеством разных ненужных предметов и мусора, оставшихся от прежних хозяев.











По словам Юлии, перепланировка и деление на комнаты было обусловлено не только желаниями хозяев и архитекторов, но и расположением несущих балок в квартире. Работы было много – но в итоге дизайнерам удалось создать гармоничное современное пространство, в котором комфортно жить городскому жителю.
Так выглядел процесс ремонта.
А вот так квартира выглядит «после»
– Наша задача заключалась в том, чтобы создать аккуратное, современное пространство для жизни, – рассказывает сооснователь студии Алексей Кораблев. – Но одновременно с этим мы хотели сохранить историю дома, чтобы подчеркнуть значимость места, в котором квартира находится.
Именно поэтому мы сохранили старые молдинги на потолке, радиаторы отопления и шикарные арочные окна, которые использовали как один из элементов дизайна.

Прихожая: высокая «невходная» дверь для соразмерности
Входная дверь получилась необычной по двум параметрам. Во-первых, ее сделали нестандартной высоты: так как высота потолков в сталинках три метра (то есть больше, чем в обычных панельках), то и в отношении двери нужно было сохранить пропорции. Так на входе появилось полотно высотой 2,4 метра.


Во-вторых, сама по себе эта дверь не похожа на входную – ее специально замаскировали под межкомнатную, чтобы соблюсти общую концепцию интерьера. Такая «маскировка» получилась благодаря отсутствию дверного глазка и верхнего замка. А еще дверную ручку использовали такую же, как на других дверных полотнах в квартире.
Напротив входа дизайнеры расположили большой встроенный шкаф для хранения верхней одежды. Дверь в нем (как и на входе в спальню) сделали раздвижной. А все потому, что в квартире есть кот. И чтобы не делать для него дополнительные проемы, дизайнеры выбрали раздвижные двери, которые можно оставлять приоткрытыми. Плюс это экономит пространство, а высота дверей от пола до потолка визуально его расширяет.

Гостиная, объединенная с кухней: углы и скругленности
– В отделке мы использовали сочетание простых белых поверхностей и понятных геометрических форм. А дополнили их фактурным деревом и оригинальными предметами искусства местных дизайнеров, – поясняет Алексей. – Такой контраст делает интерьер многогранным и сложным. С одной стороны, мы видим классические приемы минимализма, а с другой – показываем его статусность и состоятельность.


В зоне кухни дизайнеры расположили большой полубарный остров, за которым удобно как сидеть, так и стоять. Столешница сделана с фактурной деревянной поверхностью, а в дверцах верхних шкафчиков кухни использованы классические витражи.
В боковой нише спрятан холодильник. Рядом с ним расположен выдвижной шкаф для хранения.


В зоне гостиной – диван с регулируемой глубиной сиденья и полочкой в спинке. Ее можно использовать как для хранения, так и для дополнительного сиденья в обеденной зоне.
– Арочные окна здесь мы дополнили некоторыми скругленными по форме элементами, которые поддержали их оригинальный дизайн. Например, круглым журнальным столиком со скрытым хранением. А фактурный фасад комода в зоне ТВ перекликается с фактурой столешницы.


Санузел: парадный и приватный
Санузел дизайнеры не только объединили и увеличили, но и условно разделили на две части: парадную и приватную. Зону с умывальником и ванной расположили возле окна, чтобы днем освещение было естественным, а часть с унитазом, бойлером и хранением «спрятали» подальше.
Кстати, на окно нанесли зеркальное напыление, благодаря чему снаружи не видно, что происходит внутри. Так что спокойно можно ходить и голышом – берите на заметку.




И наконец, спальня: совсем маленькая, но удобная
Спальня получилась небольшой, поэтому в ней расположены только кровать с мягким изголовьем во всю стену и маленькие прикроватные столики. Отдельно обустроена просторная гардеробная.




Перепечатка материалов CityDog.io возможна только с письменного разрешения редакции. Подробности здесь.
Фото: Сергей Пилипович.














